Украина +38 044 300 27 56
Казахстан +7 717 269 62 34
Израиль +972 3 374 12 19
Грузия +995 706 77 73 68
Чехия (моб.) +420 608 608 931
Чехия (гор.) +420 228 883 993

Адрес: Praha 4, Branik, ул. Vavrenova.

Описание проекта:

Новый проект квартир Trinovia находится в нескольких минутах от центра Праги. Каждая квартира спроектирована так, чтобы уникальную жилую атмосферу с максимальным использованием пространства и натурального освещения.

Изображение на карте:

 

 Этаж

 Кол-во

комнат

 Площ.

 Площ.

Б/Т

 Общ.

площ.

 Цена

без НДС

 Рис.

 A.01.1

 1

 3+kk

 83,78

 0,00

 83,78

 5.846.222

 План

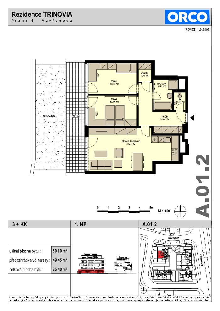
 A.01.2

 1

 3+kk

 85,4

 0,00

 85,4

 5.615.541

 План

 A.01.3

 1

 2+kk

 67,12

 0,00

 67,12

 4.189.840

 План

 B.01.1  1  3+kk  101,35  0,00  101,35  6.105.171  План

 B.01.2

 1

 4+kk

 121,61

 0,00

 121,61

 6.797.774

 План

 C.01.1

 1

 1+kk

 53,65

 7,65

 61,3

 3.306.234

 План

 C.01.2

 1

 1+kk

 43,25

 9,05

 52,3

 2.992.469

 План

 C.01.4

 1

 3+kk

 86,7

 0,00

 86,7

 5.478.682

 План

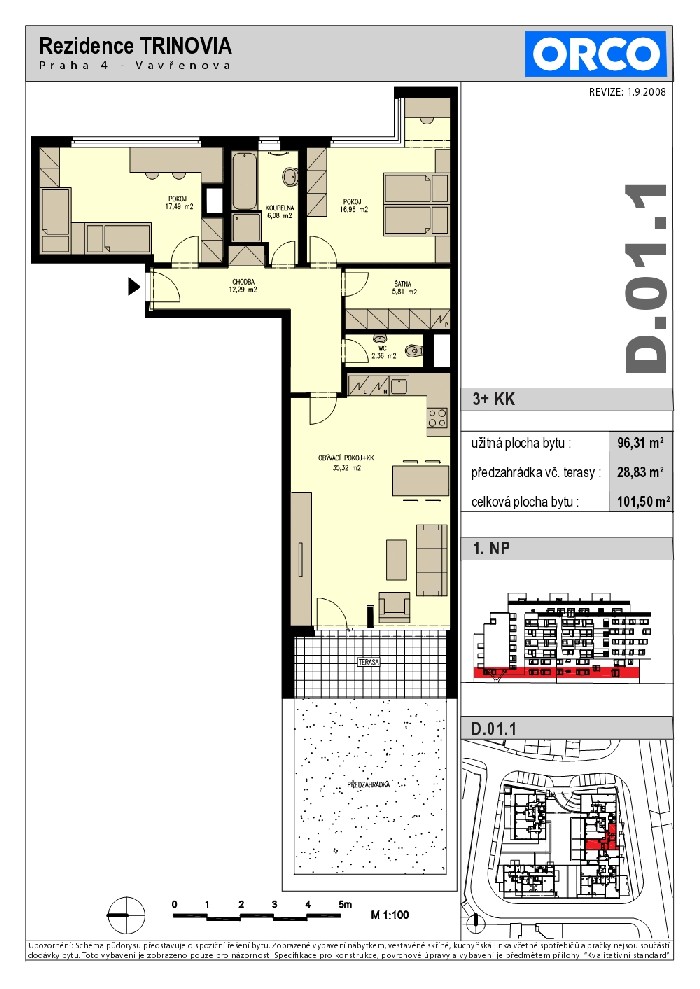
 D.01.1

 1

 3+kk

 101,5

 0,00

 101,5

 5.846.745

 План

 D.01.2

 1

 3+kk

 88,59

 0,00

 88,59

 5.739.083

 План

 A.02.1

 2

 3+kk

 83,78

 7,35

 91,13

 5.804.799

 План

 A.02.2

 2

 3+kk

 90,88

 11,20

 102,08

 6.037.898

 План

 A.02.3

 2

 4+kk

 126,58

 6,75

 133,33

 7.475.628

 План

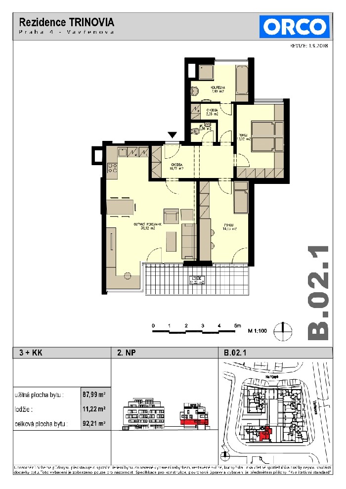
 B.02.1

 2

 3+kk

 92,21

 11,22

 103,43

 6.059.922

 План

 B.02.2

 2

 2+kk

 65,81

 9,91

 75,72

 4.562.805

 План

 B.02.3

 2

 3+kk

 100,11

 8,87

 108,98

 6.344.359

 План

 C.02.1

 2

 3+kk

 91,57

 8,55

 100,12

 5.755.809

 План

 C.02.2

 2

 3+kk

 94,15

 22,21

 116,36

 6.098.613

 План

 C.02.3

 2

 2+kk

 69,25

 4,33

 73,58

 4.559.572

 План

 C.02.4

 2

 3+kk

 91,63

 7,38

 99,01

 5.724.281

 План

 D.02.1

 2

 3+kk

 101,5

 7,38

 108,88

 6.117.522

 План

 D.02.2

 2

 3+kk

 94,2

 10,37

 104,57

 5.968.397

 План

 D.02.3

 2

 4+kk

 125,15

 7,81

 132,96

 7.179.113

 План

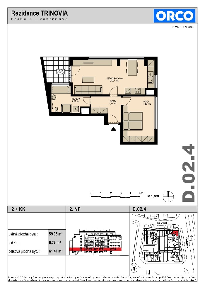
 D.02.4

 2

 2+kk

 61,41

 6,77

 68,18

 4.054.992

 План

 A.03.1

 3

 3+kk

 83,78

 7,35

 91,13

 5.915.367

 План

 A.03.2

 3

 3+kk

 90,88

 11,20

 102,08

 6.159.876

 План

 A.03.3

 3

 3+kk

 92,37

 5,31

 97,68

 6.127.049

 План

 A.03.4

 3

 4+kk

 117,28

 8,35

 125,63

 7.063.444

 План

 B.03.1

 3

 3+kk

 92,21

 11,22

 103,43

 6.183.593

 План

 B.03.2

 3

 2+kk

 65,81

 9,91

 75,72

 4.652.272

 План

 B.03.3

 3

 4+kk

 127,32

 6,83

 134,15

 7.603.140

 План

 C.03.1

 3

 3+kk

 91,57

 8,63

 100,2

 5.879.436

 План

 C.03.2

 3

 3+kk

 94,15

 22,21

 116,36

 6.227.005

 План

 C.03.3

 3

 2+kk

 71,32

 4,33

 75,65

 4.691.734

 План

 C.03.4

 3

 2+kk

 68,6

 7,58

 76,18

 4.667.583

 План

 C.03.5

 3

 2+kk

 62,89

 9,08

 71,97

 4.433.021

 План

 D.03.1

 3

 2+kk

 63,74

 6,97

 70,71

 4.419.544

 План

 D.03.2

 3

 2+kk

 68,54

 7,58

 76,12

 4.663.714

 План

 D.03.3

 3

 1+kk

 47,47

 3,77

 51,24

 3.286.032

 План

 D.03.4

 3

 4+kk

 125,23

 7,81

 133,04

 7.346.826

 План

 D.03.5

 3

 3+kk

 103,65

 6,98

 110,63

 6.095.473

 План

 A.04.1

 4

 3+kk

 83,78

 7,35

 91,13

 6.025.935

 План

 A.04.2

 4

 3+kk

 90,09

 11,20

 101,29

 6.230.416

 План

 A.04.3

 4

 3+kk

 92,31

 5,31

 97,62

 6.243.242

 План

 A.04.4

 4

 4+kk

 117,97

 8,35

 126,32

 7.257.998

 План

 B.04.1

 4

 2+kk

 67,28

 34,93

 102,21

 5.045.307

 План

 B.04.2

 4

 2+kk

 58,61

 28,56

 87,17

 4.727.295

 План

 C.04.3

 4

 2+kk

 71,26

 4,33

 75,59

 4.734.318

 План

 C.04.4

 4

 2+kk

 70,12

 6,43

 76,55

 4.728.515

 План

 C.04.5

 4

 2+kk

 62,85

 10,02

 72,87

 4.504.187

 План

 D.04.1

 4

 2+kk

 67,93

 10,10

 78,03

 4.659.491

 План

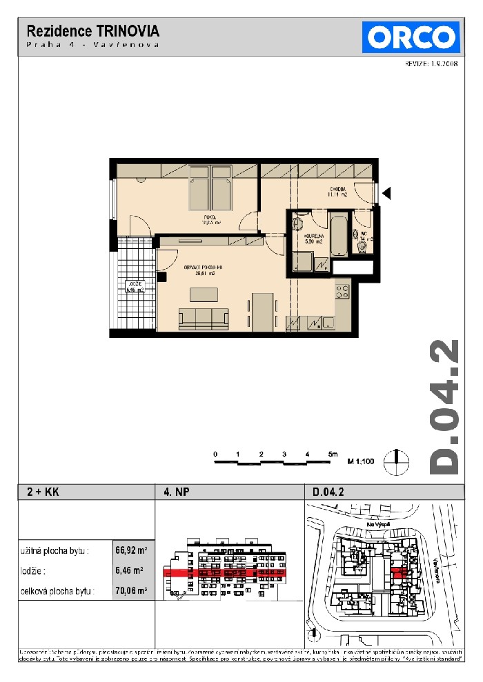
 D.04.2

 4

 2+kk

 70,06

 6,46

 76,52

 4.725.613

 План

 D.04.3

 4

 1+kk

 47,47

 3,77

 51,24

 3.349.225

 План

 D.04.4

 4

 4+kk

 125,15

 7,81

 132,96

 7.505.436

 План

 D.04.5

 4

 3+kk

 103,66

 7,11

 110,77

 6.167.515

 План

A.05.1 5 3+kk 95,14 41,29 136,43 6.792.030  План
A.05.2 5 4+kk 112,15 35,27 147,42 7.570.371  План

 A.05.3

 5

 4+kk

 115,13

 9,34

 124,47

 7.345.846

 План

 B.05.1

 5

 2+kk

 80,3

 121,97

 202,27

 5.972.358

 План

 C.05.1

 5

 2+kk

 72,17

 17,00

 89,17

 5.044.873

 План

 C.05.2

 5

 2+kk

 67,87

 20,63

 88,5

 4.919.793

 План

 C.05.3

 5

 2+kk

 71,32

 4,33

 75,65

 4.784.639

 План

 C.05.4

 5

 2+kk

 68,6

 7,58

 76,18

 4.759.104

 План

 C.05.5

 5

 2+kk

 62,83

 11,38

 74,21

 4.556.648

 План

 D.05.1

 5

 2+kk

 63,76

 18,27

 82,03

 4.665.146

 План

 D.05.2

 5

 2+kk

 68,54

 7,58

 76,12

 4.755.159

 План

 D.05.3

 5

 1+kk

 47,47

 3,77

 51,24

 3.412.418

 План

 D.05.4

 5

 4+kk

 125,15

 7,81

 132,96

 7.668.598

 План

 D.05.5

 5

 3+kk

 103,66

 6,98

 110,64

 6.231.510

 План

 C.06.1

 6

 3+kk

 102,77

 32,05

 134,82

 6.862.945

 План

 C.06.2

 6

 2+kk

 71,33

 4,54

 75,87

 4.885.178

 План

 C.06.3

 6

 2+kk

 70,12

 6,43

 76,55

 4.867.589

 План

 C.06.4

 6

 2+kk

 62,85

 10,05

 72,9

 4.633.902

 План

 D.06.1

 6

 2+kk

 67,93

 10,14

 78,07

 4.799.207

 План

 D.06.2

 6

 2+kk

 70,1

 6,47

 76,57

 4.867.589

 План

 D.06.3

 6

 4+kk

 125,65

 127,83

 253,48

 9.020.259

 План

 D.06.4

 6

 3+kk

 111,64

 15,28

 126,92

 6.936.953

 План

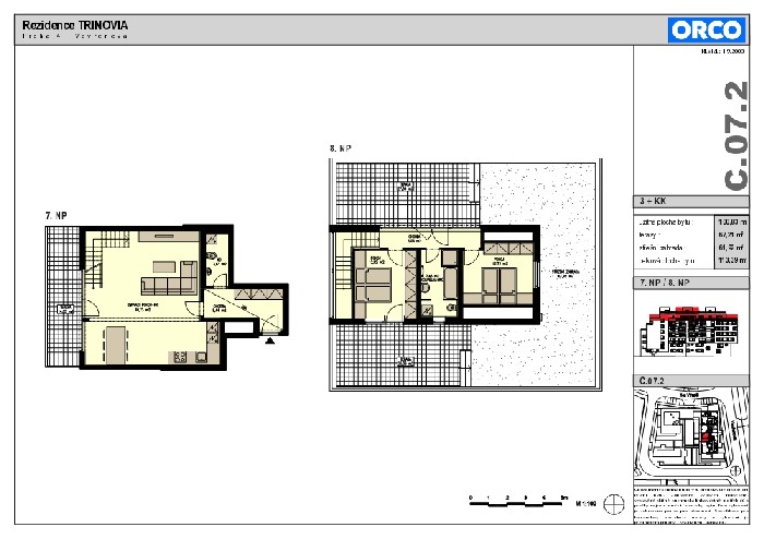
 C.07.2

 7

 3+kk

 113,39

 67,21

 180,6

 8.167.274

 План

 C.07.3

 7

 1+kk

 47,67

 27,43

 75,1

 3.568.673

 План

 D.07.1

 7

 3+kk

 104,34

 30,93

 135,27

 6.872.014

 План

Б — балкон;
Т — терраса;

Цена приведена в кронах.
Площадь показана в м2.

Галерея:

Comments are closed.

Exit mobile version